Descriptif
Ces magnifiques appartements de qualité dans un quartier résidentiel au coeur de Givisiez offrent un cadre de vie idyllique.
Une situation exceptionnelle, au calme, à proximité de la nature et de toutes les commodités, commerces, axe routier, école primaire à 850 mètres et les transports publics à 550 mètres à pied.
Ces appartements traversants lumineux et confortables vous proposent une cuisine ouverte, un spacieux séjour donnant sur un balcon couvert et vue sur un jardin joliment arboré orienté sud-ouest pour admirer le lever du soleil.
Ce bâtiment de 6 logements au design contemporain est équipé, d’une cave individuelle au sous-sol, d'une place de parc couverte par logement ainsi qu'une une place visiteur.
Le permis de construire est en force, le démarrage des travaux est prévu au printemps 2026.
La fin des travaux estimé pour l'automne 2027.
Rez-de-Chaussé en Duplex avec terrasse et jardin privatif
Lot 13-1. 4,5 Duplex 112.18 m2 avec terrasse de 16.94 m2, jardin 16.31 m2, cave 2.56 m2, surface pondérée 118.03m2 : 925’000 CHF
Lot 13-2. 4,5 Duplex 110.56 m2 avec terrasse de 17.16 m2, jardin 18.15 m2, cave 2.52 m2, surface pondérée 116.47 m2 : 925’000 CHF
Lot 13-3. 4,5 Duplex 110.56 m2 avec terrasse de 17.16 m2, jardin 21.38 m2, cave 2.56 m2, surface pondérée 116.48 m2 : 925’000 CHF
Lot 13-4. 5,5 Duplex 116.70 m2 avec terrasse de 19.32 m2, jardin 101.57 m2, cave 2.49 m2 surface pondérée 123.32 m2 : 945'000 CHF
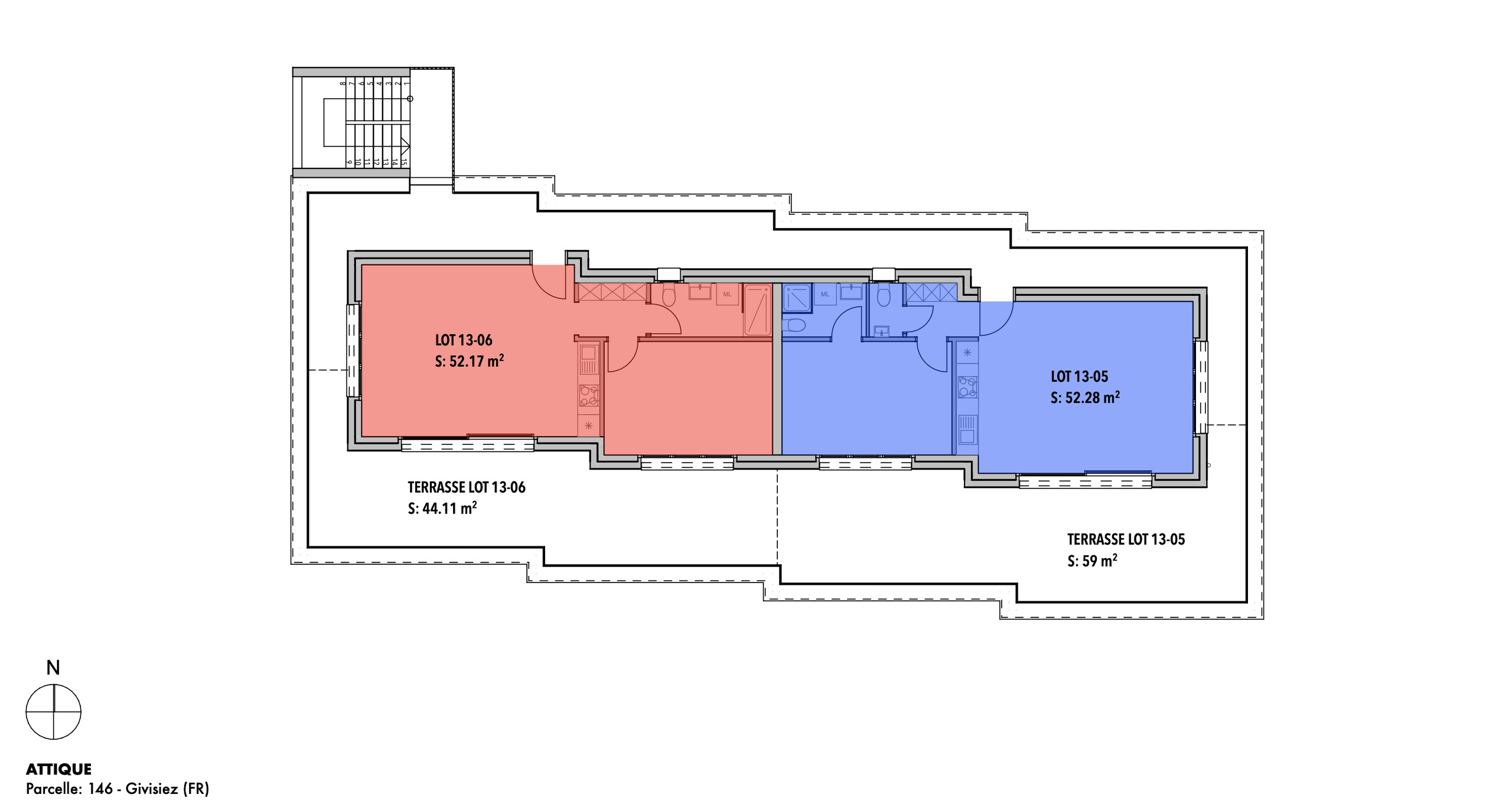
Lot 13-5. 2,5 Attique 52.28 m2 avec terrasse de 59 m2, cave 2.52 m2, surface pondérée 72.00 m2 : 595’000 CHF
Lot 13-6. 2,5 Attique 52.17 m2 avec terrasse de 44.11 m2, cave 2.56 m2, surface pondérée 66.98 m2 : 595’000 CHF
Veuillez nous contacter pour de plus amples informations.
Veuillez nous contacter pour de plus amples informations.
Situation
Une situation idyllique dans un quartier résidentiel, combine tranquillité et proximité des commodités, avec des transports publics efficaces.
Commune
Givisiez est une commune suisse dynamique du canton de Fribourg, connue pour son cadre de vie paisible et vert, idéalement située près de la ville de Fribourg et Villars-sur-Glâne avec des infrastructures modernes, de nombreux espaces verts (forêt du Bois de la Faye), une forte croissance démographique et un engagement envers le développement durable.
Commerces
Commerce Lidl, Conforama, Jumbo à proximité
Transports
Arrêt de bus num 8/ N2 à 550 mètres
Axe autoroute à proximité
30 minutes direction Bern
21 minutes direction Bulle
Construction
Construction traditionnelle de qualité
Choix des matériaux au gré du preneur
Rez-de-chaussée
Un jardin joliment arboré avec terrasse privative orienté Sud-Ouest
Remarques
Une place de parc en sus sous-couvert 25'000 CHF par lot et une place visiteur complète cette propriété d'exception
Commodités
Environnement
- Centre-ville
- Quartier de villas
- Verdoyant
- Commerces
- Banque
- Poste
- Restaurant(s)
- Pharmacie
- Gare
- Arrêt de bus
- Entrée/sortie autoroute
- Enfants bienvenus
- Crèche/garderie
- Ecole primaire
- Ecole secondaire
- Haute école
- Centre sportif
- Patinoire
- Médecin
Extérieur
- Terrasse(s)
- Place(s) de parc couverte(s)
Intérieur
- Cuisine ouverte
- Cave
- Lumineux
Equipement
- Cuisine équipée
- Branchements pour colonne de lavage
Sol
- Carrelage
- Parquet
Etat
- Neuf
Exposition
- Sud
- Ouest
Ensoleillement
- Optimal
Vue
- Champêtre















