Descriptif
Deux magnifiques villas situées à la route des Neigles en basse ville de Fribourg avec vue sur la Sarine.
Une situation exceptionnelle dans un havre de paix, à 800m de l'école et du bus, à deux des restaurants, commerces, terrain de foot et de la promenade des légendes où vous pourrez admirer entre autre les fameuses sculptures de Hubert Audriaz.
Cette promotion de qualité propose des pièces à vivre lumineuses, une chambre parentale avec dressing et salle de bain privative avec douche à l'italienne, deux spacieuses chambres enfants et/ou bureau avec salle de bain au rez-de-chaussé et un grand séjour cuisine ouverte donnant sur une généreuse terrasse offrant une vue imprenable sur la vielle ville de Fribourg, la Sarine et sur le pont de la Poya et/ou sur la Cathédrale de Fribourg.
Un interphone, store électrique dans chacune des pièces, moustiquaires et un jardin joliment arboré complète cette propriété d'exception.
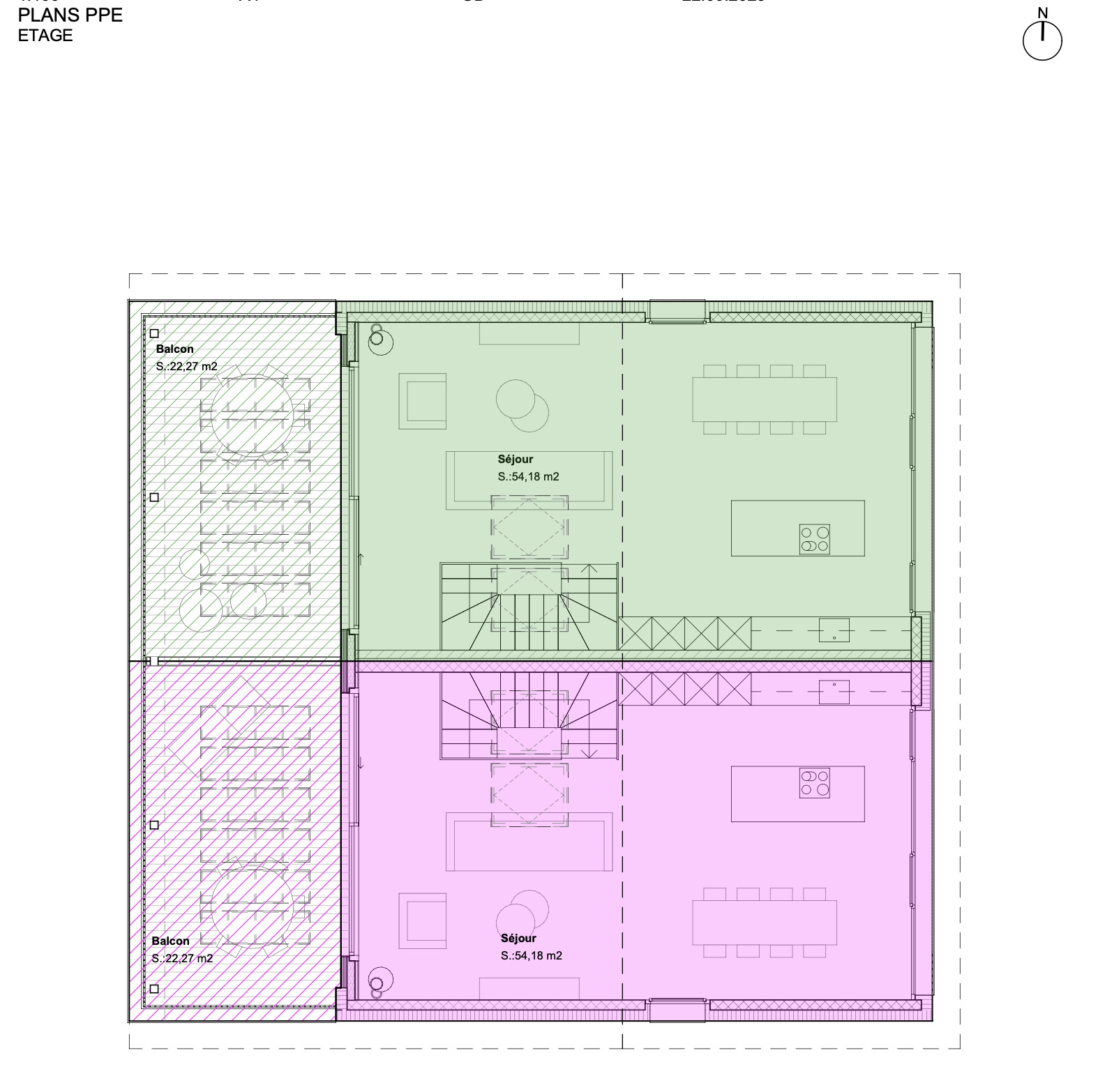
Disposition des étages :
SOUS-SOL
Une spacieuse chambre parentale avec dressing et salle de bain privative de 32 m2 et accès direct au jardin
Une buanderie avec colonne de lavage et séchage de 10.6 m2
Une cave de 10m2
REZ-DE-CHAUSSEE
Deux spacieuses chambres enfants et/ou bureau d'environ 13m2 chacune
Une salle de bain avec douche 5.7 m2
Un hall d'entrée de 7.74 m2 avec dressing
ETAGE
Un grand séjour cuisine donnant sur une généreuse terrasse avec vue imprenable sur la vieille ville et la Sarine.
Surface pondérée 157 m2
Surface net habitable 137 m2
Balcon 22 m2 + jardin privatif
Cave 9.63 m2
Local technique en commun 10.49 m2
Places de parc sous-couvert
Date d'entrée dès le 1er mars 2026
Veuillez nous contacter pour de plus amples informations
Situation
Situation exceptionnelle et rare, proche et vue sur la Sarine, Basse ville et transport publique
Transports
Le bus est régulier à 800m à pied, 11min direction gare de Fribourg.
Autoroute A12, 5 min en voiture
27 minutes en voiture direction de Berne
24 minutes en voiture direction de bulle
Construction
Matériaux premier choix, carrelage, parquet et cuisine avec îlot central
Commodités
Environnement
- Centre-ville
- Verdoyant
- Arrêt de bus
- Enfants bienvenus
Extérieur
- Balcon(s)
- Terrasse(s)
- Jardin
- Parking
Vue
- Belle vue
- Panoramique
Style
- Moderne


















