Descriptif
Ce charmant 3.5 pcs entièrement rénové au 2ème étage sans ascenseur à tout pour bien plaire.
Une situation idyllique, dans un quartier calme et résidentiel, proche de toutes les commodités, bus, école, commerces, autoroute A12 direction (fribourg-bulle). Le bus scolaire s'arrête à quelques pas.
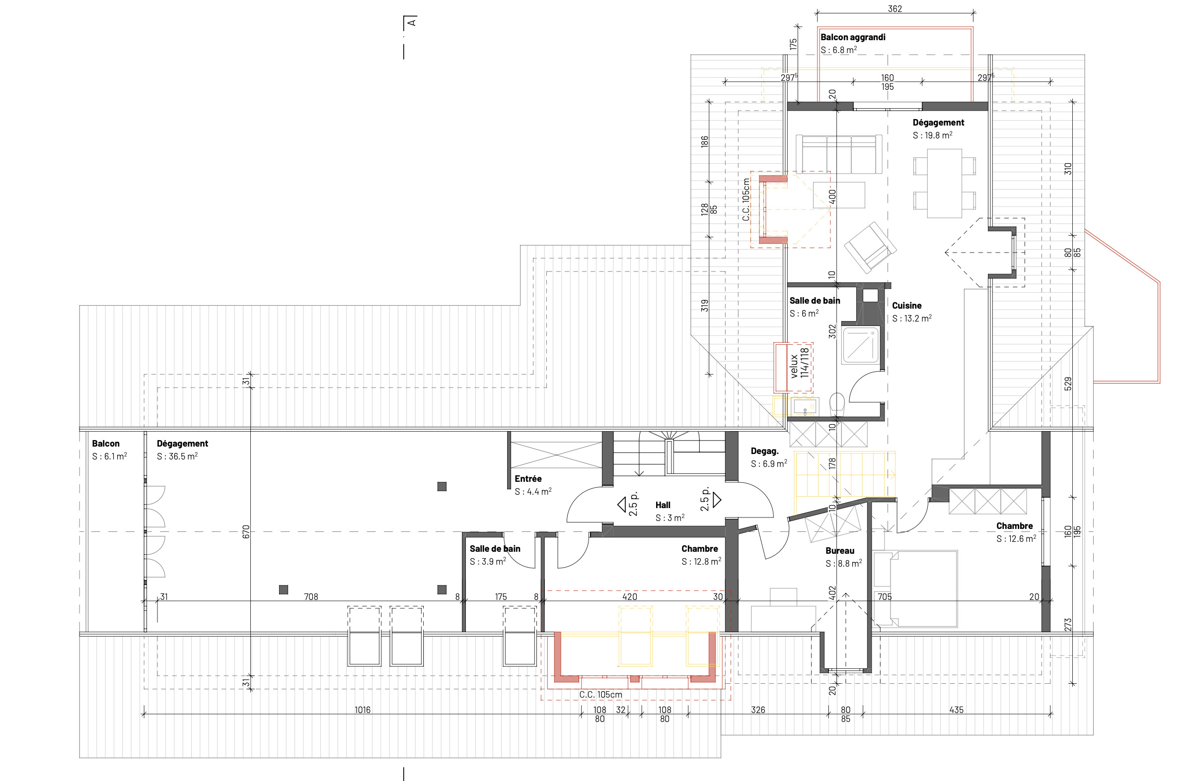
Conçu avec goût, cet appartement vous proposent un séjour cuisine ouverte donnant sur une généreuse terrasse avec vue, une spacieuse chambre à coucher avec balcon privatif et dressing encastré, un grand espace bureaux de 9m2, une lumineuse salle de bain avec douche.
Les luminaires sont déjà installés dans chaque pièce à vivre.
Une cave privative et une place de parc de parc extérieures complète cette propriété d'exception.
3.5 pcs au 2ème étage Comble
Surface habitable 67.3 m2
Surface pondéré 71 m2
Balcon 6.8 m2
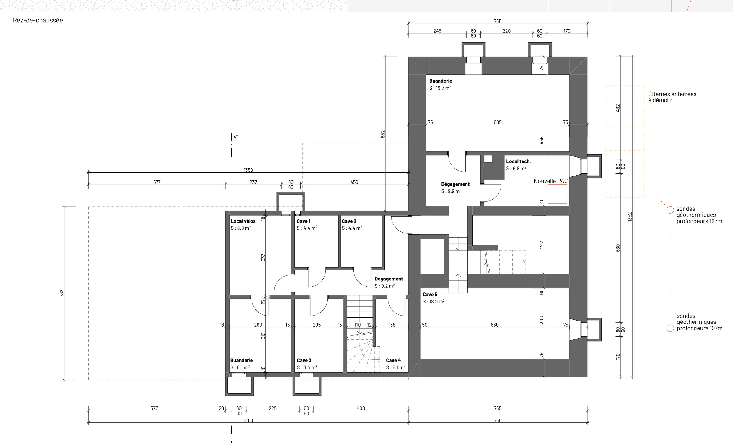
Cave env 5 m2
Location 1'600 CHF charge comprise
Place de parc extérieur en sus 90 CHF/mois
Location inclus charge et 1 place de parc 1'690 CHF
Veuillez nous contacter pour une éventuelle visite.
Nos meilleurs salutations
Situation
Bus scolaire à 50m
Matran 6 minutes en voiture Fribourg
Autoroute A12 à Rossens à 6 minutes
Ecole primaire Posieux à 15minutes à pied
Commune
Hauterive est une commune suisse du canton de Fribourg située dans le district de la Sarine
Transports
Transport public à proximité
Construction
Transformation 2025
Commodités
Environnement
- Village
- Verdoyant
- Quartier résidentiel
- Commerces
- Banque
- Poste
- Restaurant(s)
- Pharmacie
- Arrêt de bus
- Enfants bienvenus
- Ecole maternelle
- Ecole primaire
- Ecole secondaire
- Centre sportif
- Médecin
Extérieur
- Balcon(s)
- Silencieux/tranquille
- Parking
Intérieur
- Sans ascenseur
- Salle de bain privative
- WC visiteurs
- Dressing
- Cave
- Triple vitrage
- Lumineux
- Traversant
- Avec cachet
Equipement
- Cuisine équipée
- Lave-vaisselle
- Lave-linge
- Sèche-linge
- Douche
- WiFi
Etat
- Neuf
Exposition
- Sud
- Ouest
Ensoleillement
- Optimal
- Toute la journée
Vue
- Champêtre
Style
- Moderne














